مخطط استراحة صغير من أهم الأشياء التي يمكن لهؤلاء الأفراد في فئة المهتمين بمجال الديكور أن يطبقوها للوصول لـ احدث التصاميم الخاصة بالمراحيض التي يمكن تطبيقها بسهولة ويسر على الأرض … احدث الأوقات الممتعة معًا سواء كنت تلعب أو تلعب القمار أو تتحدث ، كل ما تحتاجه هو بعض المفروشات البسيطة ومجموعة من الألعاب الجماعية الممتعة والمسلية ومن ثم ستحصل في الواقع على العزلة المناسبة لك ولك. الأسرة.
ما هو مفهوم الاستراحة
يشير مفهوم الراحة المنزلية لـ المساحات الكبيرة في المنازل التي يمكن استخدامها بشكل فعال لتحقيق مكان خاص ومثالي للتجمعات العائلية أو الأصدقاء ، حيث يوفر فرصة مثالية للأفراد لممارسة كل الأنشطة المختلفة التي يمارسونها عادة في الإجازة. أو العطل بشكل عام.
في ضوء أهم المكونات الأساسية التي سيتم توفيرها في الباقي ، سنرى أنها قضية نسبية تختلف كماًا لعدد من العوامل والتأثيرات المختلفة ، والأهم من ذلك أن الباقي قد يكون مساحة لنفسه. من المعتاد تضمين عدد من قطع الأثاث البسيطة ، مثل الأرائك المريحة والطاولات الصغيرة ، وكذلك الإمكانيات المادية المتاحة للأفراد في نفس الوقت ، ولكن بشكل عام لأي راحة ، وهذا يأتي بالإضافة لـ إصرار حضورها. بعض أدوات الترفيه المتنوعة مثل الألعاب المتنوعة مثل المونوبولي وغيرها.
تابع أيضًا:
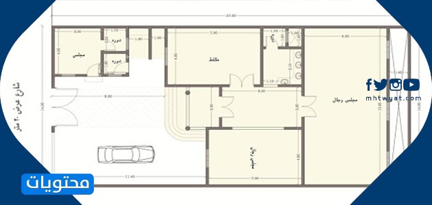
مخطط استراحة صغير
تحوي توقيت الراحة الصغيرة عددًا محدودًا من المهارات والموارد التي يتم تنسيقها مع بعضها البعض لإعطاء افضل نتيجة ممكنة في النهاية ، ولعل أهم هذه القدرات الكامنة في مثل هذه الاستراحات هي قطع الأثاث المحدودة وبعض المعدات والأدوات البسيطة المطلوبة لحفلات الشواء وهذا أفراد من نفس العائلة.يأتي هذا بالإضافة لـ وجود بعض الأماكن الصغيرة لتناول الطعام وعدد من الألعاب الجماعية المفضلة ، وفيما يلي سنرى بعضًا من افضل وأفضل توقيت الراحة الصغيرة المصممة والمصممة خصيصًا لعام 2021 بالصور:



تابع أيضًا:
فكرة استراحة صغيرة مع حمام سباحة
تعتبر توقيت الراحة الصغيرة المصاحبة لوجود حمامات السباحة من أكثر الخيارات مثالية ومناسبة لمن يرغب في قضاء إجازات صغيرة وممتعة دون الحاجة للسفر أو الانتقال من مكان لـ انتهاء ، حيث أنها تحتوي بالفعل على عدد ضخم. الكماليات والكماليات المتنوعة مثل وجود بعض الحدائق الصغيرة فهي مليئة بأجمل الزهور والورود العطرة ، وهذا أثاث صغير وطاولات طعام وغيرها. يأتي بالإضافة لـ وجود بعض الضروريات المختلفة مثل:


تصميم كسر غير مكلف
لكي يتمكن الفرد أخيرًا من تحقيق التصميم الأنسب لفترات الراحة البسيطة وغير المكلفة ، يجب عليه أولاً أن يدرك الحاجة لـ تحقيق توازن بين قدراته المادية الملموسة والمناطق الحقيقية على الأرض ، وسيظهر أدناه. إليكم احدث وأجمل التصاميم لفترات الراحة البسيطة التي تبدو جميلة ورائعة رغم تكاليفها المالية المنخفضة:



صمم استراحة صغيرة جدًا
هناك الكثير من النماذج والتصاميم المختلفة المصممة لتناسب مناطق الترفيه الصغيرة والمحدودة ، ومعظمها يقتصر على عدد قليل من المفروشات المنزلية وبعض شاشات التلفزيون الصغيرة كأدوات متعة وترفيه أساسية ، وفيما يلي بعض من أبرزها وأجملها تصميمات الفواصل الصغيرة لعام 2021. بعضها سيكون قيد المراجعة:


تابع أيضًا:
ونتيجة لذلك ، استعرضت هذه المقالة بالفعل المحادثة حول عدد من المحاور المهمة والرئيسية ، بما في ذلك ، على سبيل المثال ، مراجعة أولية لمفهوم التمزق ، ومن المتفق مراجعتها لاحقًا. نموذج الانكسار صغير بالصور ، يأتي هذا أيضًا بالإضافة لـ دراسة مجموعة واسعة وواسعة من تصاميم الاستجمام البسيطة وغير المكلفة وأروع الصور لخططهم ، وأخيراً يتم عرض بعض الأمثلة على خطط ممتعة صغيرة مصاحبة لوجود المسابح.
مراجع
هذه النتيجة ، 26.02.2021


